Sunny Kips Bay 3BR w/Elevator & Doorman, near East River, by Blueground | Apartment in Midtown

3 Bedroom Apartment in Kips Bay, Midtown
Show up and start living from day one in New York with this cozy three bedroom Blueground apartment. You’ll love coming home to this thoughtfully furnished, beautifully designed, and fully equipped Murray Hill home with stunning balcony views over the river. (ID #NYC720)
Designed with you in mind
Gorgeous furniture, fully equipped kitchen, smart TV, and a premium wireless speaker are just a few of the amenities you’ll find inside this three bedroom apartment. Ideally located in New York, you’ll find a lot to love outside as well. When you’re ready to relax, you’ll be happy to discover every Blueground bedroom comes with superior quality mattresses, luxury linens, and cozy towels. We handle everything so you can simply show up and start living.
Sleeping arrangements
King Bed, 70.8in/180cm
King Bed, 70.8in/180cm
Queen Bed, 63in/160cm
Amenities
Building amenities unique to this three bedroom apartment include an on-site:
- Doorman
- Dryer in building
- Elevator
- Washing machine in building
- Lounge
- Media room
- Pets allowed
- Playroom
Arrival and ongoing support
The entire apartment is yours to enjoy!
Throughout your stay, you’ll have access to our Client Experience team through the Blueground App. You can schedule additional cleanings, submit maintenance requests, and view our neighborhood recommendations with just a few taps.
We’ll share all details upon confirmation of your stay.
Ideally Located
This furnished apartment is located in Murray Hill, a lively Midtown neighborhood. The active nightlife scene makes it increasingly ideal for youngsters and recent graduates. Simultaneously, families are relocating here as there are many good schools in close proximity. Murray Hill offers various destinations for culture-lovers. Namely, the New York Public Library and Bryant Park draw residents in from the rest of the city. Grand Central Station is only 5 minutes from Murray Hill by subway.
Other things to note
Building amenities may have an extra cost.
This Blueground apartment has flexible lease options, allowing you to book it for one month, a year, or more.
Pets are welcome, though weight limits and breed restrictions apply and may incur fees.
We take great pride in ensuring every photo displayed is shot in our own units with our actual furnishings. That said, we regularly refresh our decor and furniture arrangement, which may differ from what’s pictured.
A security deposit of $500 is required at booking, which will be returned within 2-4 weeks after the check-out, minus any deductible damages.
Also note
- Other apartments in this building are undergoing renovations, and you may hear construction noise inside your apartment from time to time
Sunny Kips Bay 3BR w/Elevator & Doorman, near East River, by Blueground is located in Kips Bay. Sunny Kips Bay 3BR w/Elevator & Doorman, near East River, by Blueground provides accommodation, featuring Bedding/Linens, Wellness Facilities, Pet Friendly, among other amenities. This Apartment features Bedding/Linens, Wellness Facilities, Pet Friendly, to make your stay a comfortable one.
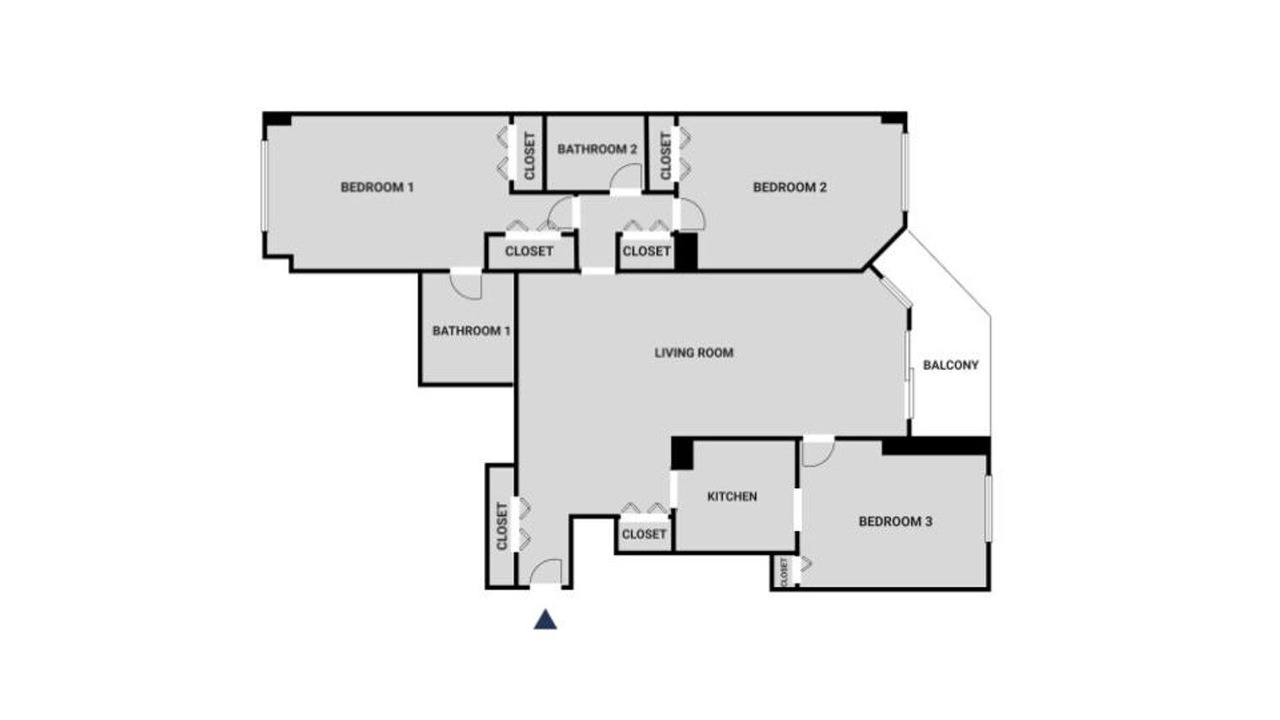
Sunny Kips Bay 3BR w/Elevator & Doorman, near East River, by Blueground has 3 Bedrooms , 2 Bathrooms, and max occupancy of 6 people. The minimum rental for this property is 1 nights, but this can change depending on the season you plan on staying. Previous guests have given good rated it, and VRBO labeled it a top-rated Apartment because of the excellent services rendered by the owner or manager of this Apartment, and has consistently provided great experiences for their guests. Most families or guests that use it recommend it to their friends and some of them are repeat guests. Apartment has a friendly neighborhood, and the Kips Bay has interesting places to visit. If you want to learn more about the Apartment in Kips Bay, such as places to visit and things to do nearby, you can check below to learn more.
Amenities
Facility Overview
-
Air conditioning
-
Heating
-
2 bathrooms
-
Towels provided
-
Hair dryer
-
3 bedrooms
-
Bed sheets provided
-
Living room
-
Stovetop
-
Refrigerator
-
Microwave
-
Cookware/dishes/utensils
-
Coffee/tea maker
-
Oven
-
Dishwasher
-
Laundry facilities
-
Washing machine and dryer
-
Pet friendly
-
Elevator
-
Smoke-free property
-
Fitness center
-
Stereo
-
TV
-
Unit size: 1343 sq ft (125 sq m)
-
Greek
-
English
-
Iron/ironing board
-
Housekeeping (on request)
-
WiFi available
-
Garden
-
Balcony
-
Smoke detector not reported (host has not indicated whether there is a smoke detector on the property)
-
Carbon monoxide detector not reported (host has not indicated whether there is a carbon monoxide detector on the property; consider bringing a portable detector)
Policies
Extra-person charges may apply and vary depending on property policy government-issued photo identification and a credit card, debit card, or cash deposit may be required at check-in for incidental charges host has not indicated whether there is a carbon monoxide detector on the property; consider bringing a portable detector with you on the trip host has not indicated whether there is a smoke detector on the property onsite parties or group events are strictly prohibited special requests are subject to availability upon check-in and may incur additional charges; special requests cannot be guaranteed this property is managed through our partner, vrbo. you will receive an email from vrbo with a link to a vrbo account, where you can change or cancel your reservation