Seaclusion - Cozy 4 Bedroom Home; 2 Covered Porches; Elevator and Ocean Views! | Condo in North Topsail Beach

4 Bedroom Condo in North Topsail Beach
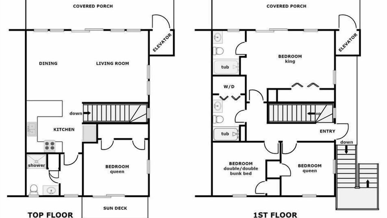
It's time to get away from it all and relax at Seaclusion - a 4 bedroom, 3 bathroom vacation home situated just steps away from the beach! Located in North Topsail Beach, this south side of a duplex has everything you need to recharge - including covered porches with great ocean views, walkway and beach access steps away, comfortable furnishings, fully stocked kitchen, and anexteriorelevator that opens on the porches.
Sweet Dreams: *Linens (bed/bath) are not included!
Sweet Dreams:
1st Floor Back Bedroom: King Bed; en suite bathroom with tub/shower; Smart TV; access to covered porch
1st Floor South Street-Side Bedroom: Queen Bed; Smart TV; shares hall bathroom with tub/shower
1st Floor North Street-Side Bedroom: Double/DoubleBunk Bed; Smart TV; shares hall bathroom with tub/shower
Top Floor Street-Side Bedroom: Queen Bed; Smart TV; shares top floor hall bathroom with shower; access to sun deck
Location:
Your beach rental is located approximately 2.9 miles north of the Surf City high rise bridge in North Topsail Beach. Simply cross over a quiet dead-end street to easy beach access! Head to Surf City to restaurants, shops, Surf City Pier and more! Be sure to visit some local attractions such as the Karen Beasley Sea Turtle Hospital and the Missiles and More Museum, which tells the story of our island’s past.
Amenities:
Central air/heat
Keyless Entry
Smart TVs in every bedroom with Cable App (bring login info for streaming services like Netflix)
Smart TV in living room includes FireStick & cable DVR
Wireless Internet
Elevator
Full kitchen with dishwasher & microwave
Washer/Dryer
Phone
Ceiling fans
Exterior elevator
Carport
Enclosed outdoor shower - hot/cold water
2 covered porches and 1 sun deck
Additional Property Information:
Smoke Free - no smoking by anyone on the premises
No Pets by Tenants
Rents Weekly Only All Year
Short stroll to the beach via path along side of home and across Seashore Drive to public beach access
Trip Preparation:
Rental homes with Ward Realty all have minimum standards to make your stay be as close to home away from home as possible. All of our rentals include fully equipped kitchens, basic small appliances (microwaves, coffee makers, toasters, blenders), pillows, comforters/bedspreads, television(s), central heating/air, iron/ironing board and much more! See our website for a helpful list of what to bring with you to your rental. Please note that this home does not come with sheets or towels. You may bring your own or rent them through Ward Realty.
Disclaimer: Photos displayed on this website are intended to provide a general representation of our vacation rental properties and the surrounding areas. While some amenities may be pictured, they are for display purposes only. Only those amenities listed on the website description, not in photos, are available. While we strive to keep all images accurate and up to date, furnishings, décor, and amenities may change over time and may vary slightly from what is shown. Seasonal differences, weather conditions, and lighting may also affect the appearance of the property. We do our best to present each rental honestly, but we cannot guarantee that every detail will be exactly as depicted. If you have specific questions or requirements, please contact us directly before booking.
Seaclusion - Cozy 4 Bedroom Home; 2 Covered Porches; Elevator and Ocean Views! is located in North Topsail Beach. Seaclusion - Cozy 4 Bedroom Home; 2 Covered Porches; Elevator and Ocean Views! provides accommodation, featuring Internet, Air Conditioner, Accessibility, among other amenities. This Condo features Internet, Air Conditioner, Accessibility, to make your stay a comfortable one.
Seaclusion - Cozy 4 Bedroom Home; 2 Covered Porches; Elevator and Ocean Views! has 4 Bedrooms , 3 Bathrooms, and max occupancy of 10 people. The minimum rental for this property is 1 nights, but this can change depending on the season you plan on staying. Previous guests have given good rated it, and VRBO labeled it a top-rated Condo because of the excellent services rendered by the owner or manager of this Condo, and has consistently provided great experiences for their guests. Most families or guests that use it recommend it to their friends and some of them are repeat guests. Condo has a friendly neighborhood, and the North Topsail Beach has interesting places to visit. If you want to learn more about the Condo in North Topsail Beach, such as places to visit and things to do nearby, you can check below to learn more.
Amenities
Facility Overview
-
Air conditioning
-
Heating
-
Shower
-
Hair dryer
-
3 bathrooms
-
4 bedrooms
-
Dining table
-
Stovetop
-
Ice maker
-
Refrigerator
-
Microwave
-
Cookware/dishes/utensils
-
Oven
-
Coffee/tea maker
-
Toaster
-
Dishwasher
-
Laundry facilities
-
Washing machine and dryer
-
Near the beach
-
Onsite parking options include a carport
-
Onsite parking
-
Car required
-
No pets allowed
-
Elevator
-
Smoke-free property
-
Swimming nearby
-
Fishing nearby
-
Surfing/body boarding nearby
-
Smart TV with cable/satellite service
-
Streaming services
-
Netflix
-
English
-
In a village
-
Near the sea
-
Iron/ironing board
-
Free WiFi
-
Balcony
-
Fire extinguisher
-
Smoke detector installed (host has indicated there is a smoke detector on the property)
-
Carbon monoxide detector not reported (host has not indicated whether there is a carbon monoxide detector on the property; consider bringing a portable detector)
Policies
Extra-person charges may apply and vary depending on property policy government-issued photo identification and a credit card, debit card, or cash deposit may be required at check-in for incidental charges host has indicated there is a smoke detector on the property host has not indicated whether there is a carbon monoxide detector on the property; consider bringing a portable detector with you on the trip onsite parties or group events are strictly prohibited safety features at this property include a fire extinguisher special requests are subject to availability upon check-in and may incur additional charges; special requests cannot be guaranteed this property is managed through our partner, vrbo. you will receive an email from vrbo with a link to a vrbo account, where you can change or cancel your reservation